صنایع آلومینیوم آبسکون
سیستم کرتین وال
abescon-logo

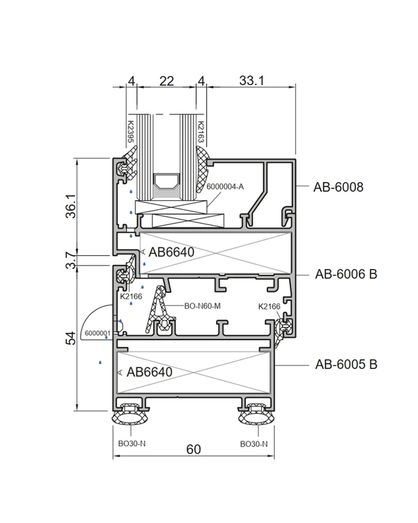
سیستم لولایی غیر ترمال بریک سیستم لولایی غیر ترمال بریک سیستم لولایی غیر ترمال بریک
abescon-1662810626-Abescon-Hinged-System-HN60-A.webp

HN60-A

برند:   Abescon


نام محصول:

سیستم لولایی غیر ترمال بریک

مزایا:


  • لینک دانلود کاتالوگ
  • 1662810742-Abescon-Hinged-System-HN60-A-Catalogue.pdf   1662810742-Abescon-Hinged-System-HN60-A-Catalogue.pdf  دانلود